117 Overlook DREatonton, GA 31024




Mortgage Calculator
Monthly Payment (Est.)
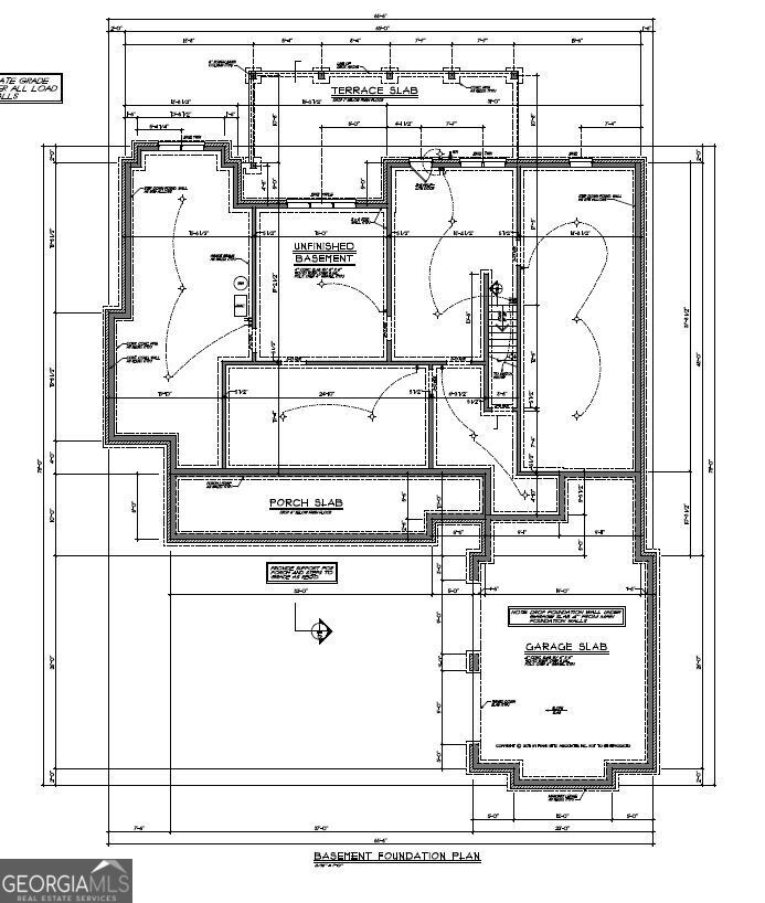
$3,878Exquisite Custom "To Be Built" New Construction home in the Overlook at Pea Ridge premier gated luxury home community within the Eatonton area! Located on a beautiful 5.09 acre lot, this home is thoughtfully designed and meticulously crafted-Custom 4-bedroom 3.5 Bath home includes high-end finishes throughout, 5,523 total SF, 2 car garage, luxury kitchen & primary bath, covered porches, and luxury primary bath. The subdivision is situated on 118 acres with a beautiful gated entrance, rolling woodland area's highlighted by a private 15 acre lake- the property has direct access across the street to community lake access area with shared docking on community island w/firepit. Best of all, it is conveniently located between Lake Oconee & Lake Sinclair! This home has not yet started construction offering buyers the opportunity to customize certain finishes & materials, additional upgraded options available *Price subject to change based on any upgrades, etc. This to-be-built home is planned for construction by Georgia Best Home Builders- Listing pertains to current floor plan illustrated- builder has three additional plans available *pricing subject to change*
| 2 weeks ago | Status changed to Active | |
| 2 weeks ago | Listing updated with changes from the MLS® | |
| 2 weeks ago | Price changed to $849,900 | |
| 4 weeks ago | Listing first seen on site |
Information deemed reliable but not guaranteed. The data relating to real estate for sale on this web site comes in part from the Broker Reciprocity Program of Georgia MLS. Real estate listings held by brokerage firms other than this office are marked with the Broker Reciprocity logo and detailed information about them includes the name of the listing brokers. Copyright © 2020-present Georgia MLS. All rights reserved.
Last checked: 2025-12-07 12:12 PM UTC
Did you know? You can invite friends and family to your search. They can join your search, rate and discuss listings with you.