Save
Ask
Tour
Hide
$335,000
New Listing
1146 Olympus CTAthens, GA 30606
For Sale|Land|Active
Subdivision:
Spartan Manor
County:
Oconee
Call Now: (478) 335-0702
Is this the listing for you? We can help make it yours.
(478) 335-0702



Save
Ask
Tour
Hide
Mortgage Calculator
Monthly Payment (Est.)
$1,528Calculator powered by Showcase IDX, a Constellation1 Company. Copyright ©2026 Information is deemed reliable but not guaranteed.
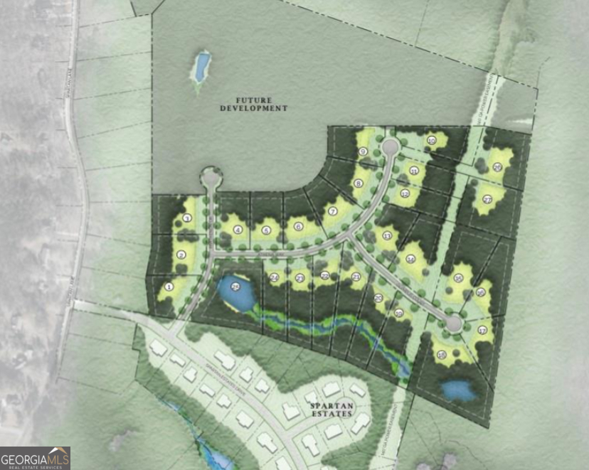
Build your dream home on one of Athens' most exceptional lots in the prestigious new community of Spartan Manor. Set in Oconee County with an Athens address, this deep front-to-back sloping lot is basement-suitable and nestled among mature hardwoods - offering the rare combination of natural beauty, privacy, and tranquility on acreage ranging from 1.5 to 4.5 acres. Spartan Manor delivers unrivaled convenience with access to award-winning Oconee County schools, while exquisite homes rise among gently rolling hills and hardwood bottoms. This is your opportunity to design and build the home you've always envisioned - in a community crafted for those who expect the extraordinary.
Save
Ask
Tour
Hide
Listing Snapshot
Price
$335,000
Days On Site
0 Days
Bedrooms
N/A
Inside Area (SqFt)
N/A
Total Baths
N/A
Full Baths
N/A
Partial Baths
N/A
Lot Size
2.24 Acres
Year Built
N/A
MLS® Number
10716670
Status
Active
Property Tax
$2,875.63
HOA/Condo/Coop Fees
N/A
Sq Ft Source
N/A
Friends & Family
Recent Activity
| 15 hours ago | Listing first seen on site | |
| 15 hours ago | Listing updated with changes from the MLS® |
General Features
Acres
2.24
Sewer
Septic Tank
Utilities
Sewer AvailableWater Available
Water Source
Public
Save
Ask
Tour
Hide
Exterior Features
Lot Features
Sloped
Community Features
Community Features
Sidewalks
Schools
School District
Unknown
Elementary School
Oconee
Middle School
Oconee
High School
Oconee
Listing courtesy of Dwell Real Estate
Information deemed reliable but not guaranteed. The data relating to real estate for sale on this web site comes in part from the Broker Reciprocity Program of Georgia MLS. Real estate listings held by brokerage firms other than this office are marked with the Broker Reciprocity logo and detailed information about them includes the name of the listing brokers. Copyright © 2020-present Georgia MLS. All rights reserved.
Last checked: 2026-03-25 07:51 AM UTC
Information deemed reliable but not guaranteed. The data relating to real estate for sale on this web site comes in part from the Broker Reciprocity Program of Georgia MLS. Real estate listings held by brokerage firms other than this office are marked with the Broker Reciprocity logo and detailed information about them includes the name of the listing brokers. Copyright © 2020-present Georgia MLS. All rights reserved.
Last checked: 2026-03-25 07:51 AM UTC
Neighborhood & Commute
Source: Walkscore
Save
Ask
Tour
Hide