Save
Ask
Tour
Hide
$300,000
1 Day On Site
1285 Cumberland RD NEAtlanta, GA 30306
For Sale|Unimproved Land|Active
0
Beds
0
Total Baths
Subdivision:
Not Shown
County:
DeKalb
Call Now: (478) 335-0702
Is this the listing for you? We can help make it yours.
(478) 335-0702



Save
Ask
Tour
Hide
Mortgage Calculator
Monthly Payment (Est.)
$1,369Calculator powered by Showcase IDX, a Constellation1 Company. Copyright ©2026 Information is deemed reliable but not guaranteed.
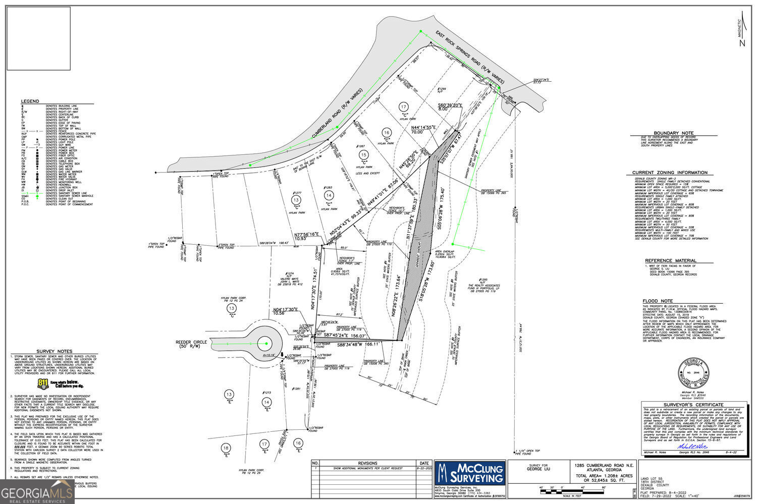
This property has a Cumberland address but access is from the cul de sac at the end of Reeder Circle. This is a full acre lot at the end of a very quiet Morningside/Hyland Park Street. The property is in Dekalb county but is within the Morningside elementary district. There is a stream at the back portion of the lot but the attached survey shows that there is a large buildable section of the property after including the stream buffer. This is a unique opportunity to design and build a property custom designed for the site and to create something very special in one of the best and well established in town neighborhoods. Boundary and topography survey are available in the docs.
Save
Ask
Tour
Hide
Listing Snapshot
Price
$300,000
Days On Site
1 Day
Bedrooms
N/A
Inside Area (SqFt)
N/A
Total Baths
N/A
Full Baths
N/A
Partial Baths
N/A
Lot Size
1 Acre
Year Built
N/A
MLS® Number
10729912
Status
Active
Property Tax
$809
HOA/Condo/Coop Fees
N/A
Sq Ft Source
N/A
Friends & Family
Recent Activity
| yesterday | Listing first seen on site | |
| yesterday | Listing updated with changes from the MLS® |
General Features
Acres
1
Additional Property Use
Other
Property Sub Type
Unimproved Land
Sewer
Public Sewer
Utilities
Cable AvailableElectricity AvailableNatural Gas AvailableSewer AvailableOther
Water Source
Public
Save
Ask
Tour
Hide
Exterior Features
Fencing
Other
Lot Features
Other
Road Frontage
City Street
View
City
Waterview
City
Community Features
Community Features
None
Roads
Paved
Schools
School District
Unknown
Elementary School
Morningside
Middle School
David T Howard
High School
Midtown
Listing courtesy of The Agency - Atlanta Metro
Information deemed reliable but not guaranteed. The data relating to real estate for sale on this web site comes in part from the Broker Reciprocity Program of Georgia MLS. Real estate listings held by brokerage firms other than this office are marked with the Broker Reciprocity logo and detailed information about them includes the name of the listing brokers. Copyright © 2020-present Georgia MLS. All rights reserved.
Last checked: 2026-04-12 12:40 AM UTC
Information deemed reliable but not guaranteed. The data relating to real estate for sale on this web site comes in part from the Broker Reciprocity Program of Georgia MLS. Real estate listings held by brokerage firms other than this office are marked with the Broker Reciprocity logo and detailed information about them includes the name of the listing brokers. Copyright © 2020-present Georgia MLS. All rights reserved.
Last checked: 2026-04-12 12:40 AM UTC
Neighborhood & Commute
Source: Walkscore
Save
Ask
Tour
Hide